ЖК «Новый Горизонт»

ПЛАНИРОВКИ КВАРТИР

От грамотно подобранного планировочного решения напрямую зависит ваше удобство. Чем продуманнее
планировку вы выберете, тем проще вам будет оформить жилье в соответствии с собственными пожеланиями.

Увеличить
Студия
Площадь — 30,21 м²
Увеличить
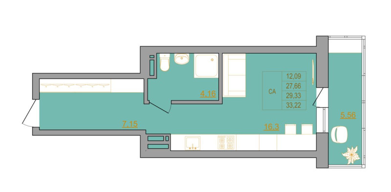
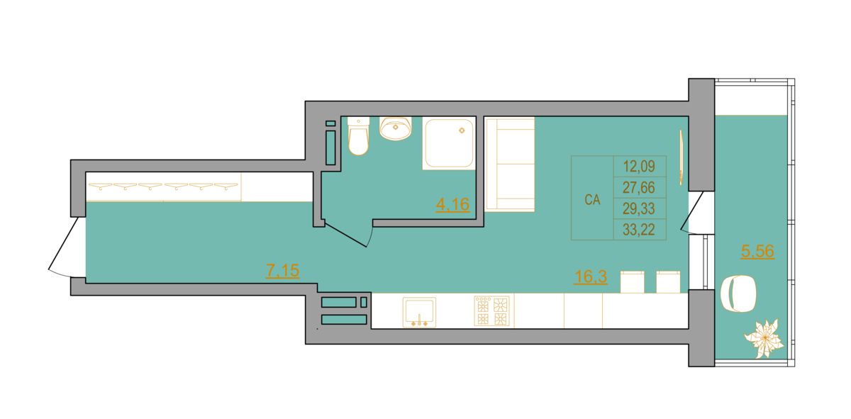
Студия
Площадь — 33,22 м²
Увеличить
1-комнатная
Площадь — 47,54 м²
Увеличить
1-комнатная
Площадь — 45,37 м²
Увеличить
1-комнатная
Площадь — 38,47 м²
Увеличить
2-комнатная
Площадь — 68,4 м²
Увеличить
2-комнатная
Площадь — 62,55 м²
Увеличить
2-комнатная
Площадь — 68,45 м²
Увеличить
3-комнатная
Площадь — 82,91 м²
Увеличить
3-комнатная
Площадь — 58,19 м²
Увеличить
4-комнатная
Площадь — 79,05 м²

Получите прайс на все квартиры

Получите прайс на все квартиры удобным для вас способом через WhatsApp SMS или Telegram

Получите прайс на все квартиры

Получите прайс на все квартиры удобным для вас способом через WhatsApp SMS или Telegram

Нажимая на кнопку, я даю согласие на обработку своих персональных данных

phone
ЖК «Новый Горизонт»

РАСПОЛОЖЕНИЕ НА КАРТЕ

Важная составляющая при выборе дома - его расположение! Что нужно именно вам? Школа, десткий сад,
транспортная развязка, магазины, места отдыха и развлечений, парковые зоны.

ЖК «Новый Горизонт»

Ипотечный калькулятор

Мы подберем программы ипотечного кредитования, сделаем предварительный расчет ваших ипотечных платежей,
поможем заполнить заявку на кредит и направим её во все банки

Сумма кредита
2 700 000
Ежемесячный платеж
22 752
Выбранный банк
Сбербанк
Процентная ставка
8.1 %
Получите одобрение ипотеки

Отправляя форму, вы даете согласие на обработку своих персональных данных

БАНКИ ПАРТНЕРЫ

Также возможна покупка в рассрочку
ЖК «Новый Горизонт»

КАК КУПИТЬ КВАРТИРУ?

4 шага к своему жилью. На каждом этапе Вы получите бесплатную помощь эксперта по новостройкам и
юридическую поддержку. Ваш правильный выбор - наша цель.

КОНСУЛЬТАЦИЯ

КОНСУЛЬТАЦИЯ

01

Бесплатная консультация и подбор новостроек по вашим параметрам

ПРЕЗЕНТАЦИЯ

ПРЕЗЕНТАЦИЯ

02

Выезд на бесплатную презентацию вместе с нашим экспертом по недвижимости

БРОНИРОВАНИЕ

БРОНИРОВАНИЕ

03

Забронируем понравившиеся квартиры у застройщика и зафиксируем цены

ПОКУПКА

ПОКУПКА

04

Оформим документы на покупку квартиры